项目地点: 广东 东莞
项目时间: 2018年12月
总设计师: 郑鸿/Henry
设计执行: 周力/Leo
生活美学 轻享安适

坚持有爱有温度的设计理念,是鸿艺源设计总设计师郑鸿做私宅设计的初心。19年来,他专注于私宅设计,为不同的居住者重新定义最适合他们本身的、真正的私享家园。从深圳湾1号、华润悦府,到万科东海岸、华侨城波托菲诺纯水岸,再到近两年的武汉天地云廷,他收获了400多位豪宅客户的高度认可,也逐步实践出自己对私宅设计的认知。
这次的项目坐落在广东东莞的愉景别墅,这里坐拥平阔的高尔夫球场、虎英公园,绿意盎然,鸟鸣成韵,自然回馈予人一片宁静致远的心境。


会客厅
设计将自然的静宁与现代生活美学交织融合,打造一个清雅与安适并存的空间,不着墨于矫饰,不注重在风格,而是以真正的美学鉴赏角度做设计,匹配业主的格调与希冀,令居住日常回归生活美学,轻享生活本身。
郑鸿认为,以往的豪宅多是富丽堂皇的豪华感,而居住者的审美实际上随着时代的变迁有了新的认识和提升,因此在设计中,私宅设计师更多的是要思量如何重新定义一个真正的私享家园?“私宅定制不仅要在材料上体现尊贵感与品质,还需在美学上赋予空间高雅的品尚,另外,还要更多地考虑人在空间的舒适体验性,这才是值得落地的一个私宅设计,一个足以承载居者理想与期待的空间”,他这样说道。






现代简约风格不过期的美学魅力,在空间中将喧嚣轻轻拂去,只留下生命中最澄澈的部分——纯粹,干净,静美,简单而不匮乏。设计用莫兰迪的调色板在空间中画出一种生活美学,雾霾蓝、沁水粉、燕麦色……色彩上加以灰度的处理,予人纯净、自由且舒缓的感受,人的所有感官在这方静谧中感知着美好以及最恰好的温度。

餐厅
半开放餐厅可以更灵活地切换中西厨方式,空间的颜色以纯净的白色为主,令就餐空间更加简净明亮。一体式橱柜完全贴合空间墙体定制,将每寸空间利用到极致,完成最大收纳容量的同时,令视觉感延续。


沿着步梯到二楼,雾霾蓝置物架与回廊组构成空间的动线,空气的流通性无比顺畅,暖和的光充满整个室内,令区隔在置物架后的休闲区更显隐蔽而闲静。




休闲区
空间摆放着L型同色系沙发、白色趣味动物座椅、懒人沙发、柔软的地毯,满足一家人的日常休闲需求;而儿童座椅的几抹海蓝色十分出挑,整体搭配在视觉上显得清爽雅静。






主卧
主卧的空间用燕麦色与烟霭色的雅澹作为主调,不同灰度的蓝色加以点缀。茶几、书桌上仅有几本书与花艺点缀;床品与家具、石材与木质等在品质感上得到了高标准的把控。偌大的衣帽间与卫浴室设计,令私享空间更为丰盛。自然的光线透过百叶窗折入室内,形成一层层迷蒙的光晕,时光在这里变得舒缓静宁。



儿童房
“私宅设计与纯展示性的样板房设计不同,因此我们考虑的是居住者的日常需要什么,而哪些装点又是不必要的,拉近设计与生活的距离,在色彩搭配、形制打造与功能环保等方面做到内外兼修,既有外在的美又富有内涵。”
女儿房采取无主灯设计,书桌的高度与台灯设计都参考小孩的身高与学习习惯,做到更加地人性化。两间儿童房都定制了一整面的展示型斜面书架,方便小朋友们取放书籍。


长辈房
基于长辈的日常起居生活需求,空间规划将长辈房安置于一层,免去上下楼梯给他们生活带来的不方便。内部空间是简洁雅馨的格调,三两束小花装点在床头,在柔和的灯光下细数过往岁月的美好。

书房
书房采用了整体的书柜定制,一面可滑动的柜门用白色的乳胶漆刷出随意的美。空间除了担当书房之余,一侧的空间摆放了沙发、坐墩及大理石茶桌、一套茶具,提供茶室的功能,招待来客,畅谈生活。

私宅设计不是由各式各样精致不凡的软饰堆砌而成,亦不是过多风格化的打造,喧宾夺主,而是要回归居住者的生活,摒除多余的装饰与艺术品。“我们主张将空间留给真正的主人,让他们有足够的空间装点日常的美,还原属于自己的生活”,郑鸿说道。
▽
鸿艺源设计,所见即所得
与商业设计不同的是,私宅设计的定制需求与设计偏好,几乎不允许实际与效果上存在落差,因此,鸿艺源设计要求自身实现“所见即所得”,实现100%的实景还原,才能让客户拥有真正希冀的、美好的、丰盛的私享生活空间。这对设计团队来说,是专业和资源的考验与挑战,需要拥有高于客户的审美和体验,拥有足够强大的供应商体系,更要拥有对专业的极致追求和实现能力。

会客厅效果图

会客厅实景图

餐厅效果图

餐厅实景图

休闲区效果图

休闲区实景图

主卧效果图

主卧实景图

起居室效果图

起居室实景图

长辈房效果图

长辈房实景图

书房效果图

书房实景图

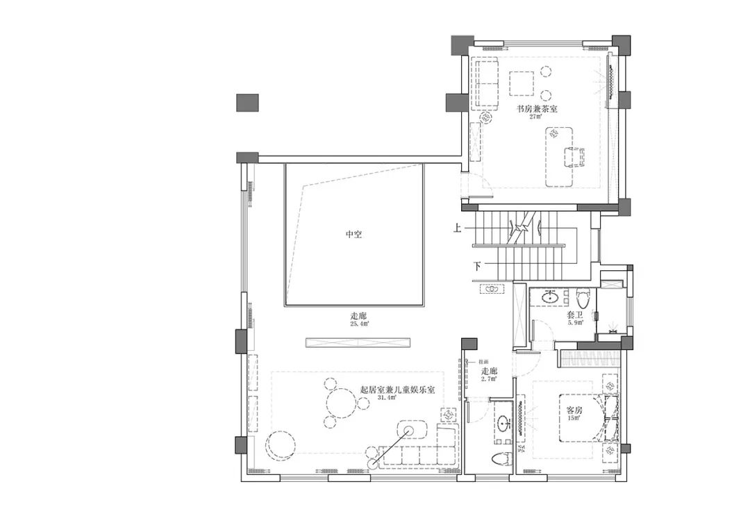
一层 平面图

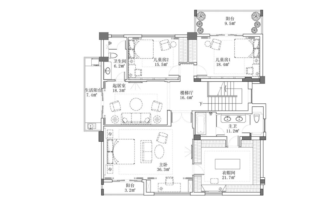
二层 平面图

三层 平面图

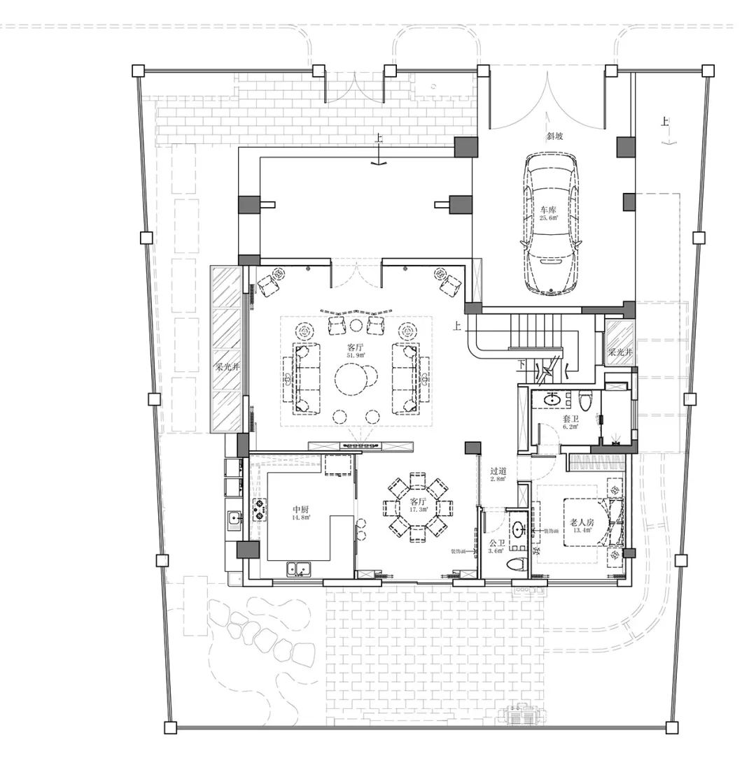
负一层 平面图

深圳市鸿艺源建筑室内设计有限公司于2005年成立,专注于别墅设计及私人住宅设计研究,为私人客户提供室内设计、软装设计服务,曾荣膺“2015年度中国十大设计团队”、“大中华区最具影响力设计机构”等殊荣。

鸿艺源设计坚持“理性设计丰盛人生”,为国内外400多位名企高管和社会名流(腾讯、华为、富士康等企业巨头,奥斯卡金像奖得主)实现其关于家的梦想,承接项目多为深圳顶级豪宅,拥有深圳湾一号、华侨城新天鹅堡、招商双玺、华润悦府、华侨城波托菲诺纯水岸等别墅及豪宅案例。
坚持做